Acton Road Permit Project
Acton Road Permit Project
do you have a construction project we can help with?
Acton Road Permit Project
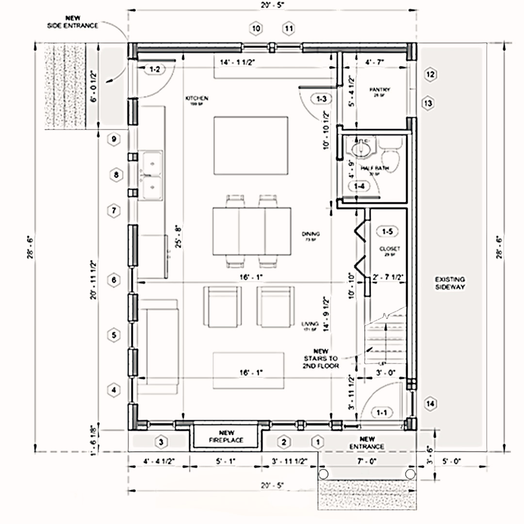
The Acton Road Permit Project involved the design and planning of a beautiful and modern house, ensuring compliance with all permit requirements. Our team worked closely with the client to create a functional and stylish living space that met their unique needs and preferences. From the initial concept to the final construction, we were dedicated to delivering a high-quality project that exceeded expectations.
Project Details
DATE
February 20, 2023
CLIENT
Client Soulveplus
PROJECT TYPE
CONTRACTOR
Soulveplus Construction Sevices




